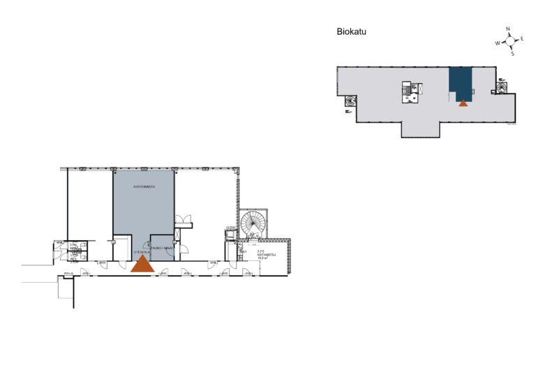
Biokatu 10, Kauppi, 33520 Tampere

Vuokrattavana toimistotila 68,5 m² – Vapaana 3. kerroksen toimitila. Toimitilaan on käynti yhteiskäytävältä. Käytävän varrella olevien yritysten käytössä on kaksi yhteiskäyttöistä keittiötilaa, taukotila, WC:t sekä varattava neuvottelutila.

Toimitilakiinteistö Gamma sijaitsee Kaupin kampusalueella, aivan Tampereen yliopistollisen sairaalan sekä alueen pääliikenneväylien läheisyydessä.

Kaupin kampukselle on vuosien saatossa sijoittunut merkittävä määrä terveys- ja hyvinvointialan yrityksiä ja osaamista. Tämä tekee alueesta erityisen houkuttelevan kyseisten alojen toimijoille.

Katso myös muut vapaana olevat tilat:

Gamma – Biokatu 10 | Toimisto 67.5 m² | LähiTapiola

Gamma – Biokatu 10 | Toimisto 51 m² | LähiTapiola

Vuokrattavana toimistotila 68,5 m² – Vapaana 3. kerroksen toimitila. Toimitilaan on käynti yhteiskäytävältä. Käytävän varrella olevien yritysten käytössä on kaksi yhteiskäyttöistä keittiötilaa, taukotila, WC:t sekä varattava neuvottelutila.

Toimitilakiinteistö Gamma sijaitsee Kaupin kampusalueella, aivan Tampereen yliopistollisen sairaalan sekä alueen pääliikenneväylien läheisyydessä.

Kaupin kampukselle on vuosien saatossa sijoittunut merkittävä määrä terveys- ja hyvinvointialan yrityksiä ja osaamista. Tämä tekee alueesta erityisen houkuttelevan kyseisten alojen toimijoille.

Katso myös muut vapaana olevat tilat:

Gamma – Biokatu 10 | Toimisto 67.5 m² | LähiTapiola

Gamma – Biokatu 10 | Toimisto 51 m² | LähiTapiola

Tilan perustiedot

Käyntiosoite Biokatu 10, Kauppi, 33520 Tampere
Tilatyyppi Toimisto
Pinta-ala 68.5 m²
Henkilömäärä 1-6 henkilöä
Kerros 3
Energialuokka F2007
Vapautuminen Heti vapaa
Rakennusvuosi 2001
Ilmanvaihto Jäähdytys

Tilaa vuokraa

Vuokravälittäjä

Anne-Mari Ijäs

Tutustu kiinteistöön

Jaa tai tulosta

Kiinteistön palveluita

  • Lounasravintola

    Viereisessä kiinteistössä palvelevat Pikanten lounasravintolat Ellipsi ja Pulssi. Lisää tietoja ravintoloista saat täältä.

  • Neuvottelutilat

    Kiinteistön ylimmästä kerroksesta löytyy kokous- sekä saunatilat, jotka ovat käyttäjien vuokrattavissa.

  • Pysäköinti

    Pysäköintipaikkoja on runsaasti  kiinteistön välittömässä yhteydessä.

Julkiset liikenneyhteydet

  • Juna-asema: 3,2 km
  • Lentoasema: 21,6 km