Biokatu 10, Kauppi, 33520 Tampere

Monipuolinen  7. kerroksen toimistotila tila, joka vapautuu 1.7.2026

Tila on mahdollista remontoida yrityksesi tarpeiden mukaisesti.

Toimitilakiinteistö Gamma sijaitsee Kaupin kampusalueella, aivan Tampereen yliopistollisen sairaalan sekä alueen pääliikenneväylien läheisyydessä.

 

 

Tilan perustiedot

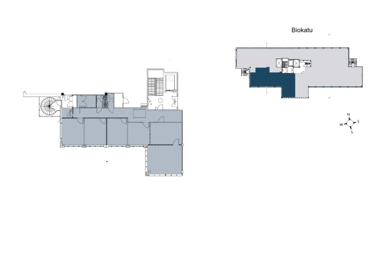
Käyntiosoite Biokatu 10, Kauppi, 33520 Tampere
Tilatyyppi Toimisto
Pinta-ala 159 m²
Henkilömäärä 5-15 henkilöä
Kerros 7
Energialuokka F2007
Vapautuminen Sopimuksen mukaan
Rakennusvuosi 2001
Ilmanvaihto Jäähdytys

Tilaa vuokraa

Vuokravälittäjä

Anne-Mari Ijäs

Tutustu kiinteistöön

Jaa tai tulosta

Kiinteistön palveluita

  • Lounasravintola

    Viereisessä kiinteistössä palvelevat Pikanten lounasravintolat Ellipsi ja Pulssi. Lisää tietoja ravintoloista saat täältä.

  • Neuvottelutilat

    Kiinteistön ylimmästä kerroksesta löytyy kokous- sekä saunatilat, jotka ovat käyttäjien vuokrattavissa.

  • Pysäköinti

    Pysäköintipaikkoja on runsaasti  kiinteistön välittömässä yhteydessä.

Julkiset liikenneyhteydet

  • Juna-asema: 3,2 km
  • Lentoasema: 21,6 km