Länsituuli 1, Tapiola, 02100 Espoo

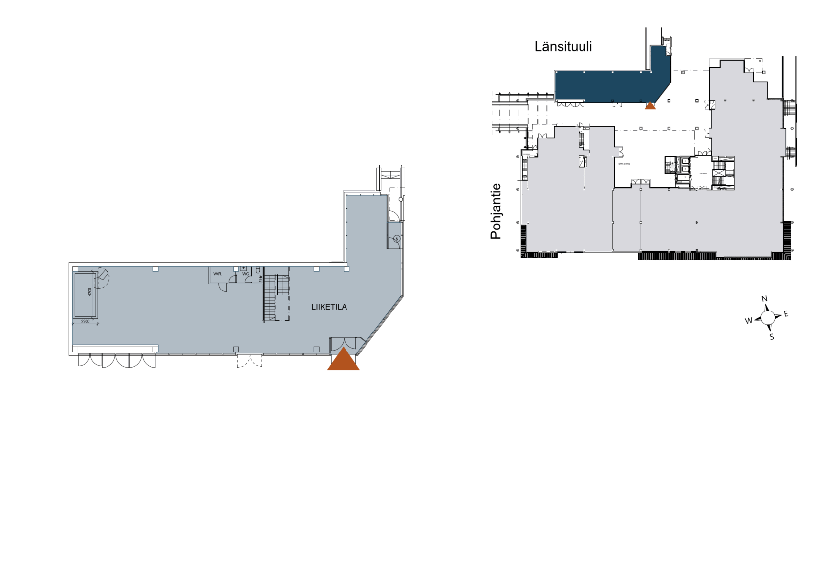
Kiinteistön katutason liiketila, joka vapautuu 1.1.2026. Tilassa on runsaasti ikkunapinta-alaa ja se on erinomaisesti saavutettavissa.

Keskeinen sijainti Tapiolan keskuksessa. Alueella meneillään olevien kiinteistökehitysprojektien vuoksi tilaa on mahdollista vuokrataan ainakin elokuun 2026 loppuun saakka.

Kiinteistössä mm. kuntosali ja vuokrattavaa saunatilaa. Kellarissa on tarjolla vuokrattavia pienvarastotiloja.
Länsikulmaan on erinomaiset julkiset liikenneyhteydet; lähin bussipysäkki on 100 metrin päässä ja metroasemalle on 300 metrin kävelymatka. Lentokentälle hurauttaa autolla alle puolessa tunnissa ja Helsingin keskustaan reilussa kymmenessä minuutissa. Lisäksi kiinteistö on erinomaisen pyörätieverkoston varrella, tuletpa mistä suunnasta tahansa.

Kiinteistön katutason liiketila, joka vapautuu 1.1.2026. Tilassa on runsaasti ikkunapinta-alaa ja se on erinomaisesti saavutettavissa.

Keskeinen sijainti Tapiolan keskuksessa. Alueella meneillään olevien kiinteistökehitysprojektien vuoksi tilaa on mahdollista vuokrataan ainakin elokuun 2026 loppuun saakka.

Kiinteistössä mm. kuntosali ja vuokrattavaa saunatilaa. Kellarissa on tarjolla vuokrattavia pienvarastotiloja.
Länsikulmaan on erinomaiset julkiset liikenneyhteydet; lähin bussipysäkki on 100 metrin päässä ja metroasemalle on 300 metrin kävelymatka. Lentokentälle hurauttaa autolla alle puolessa tunnissa ja Helsingin keskustaan reilussa kymmenessä minuutissa. Lisäksi kiinteistö on erinomaisen pyörätieverkoston varrella, tuletpa mistä suunnasta tahansa.

Tilan perustiedot

Käyntiosoite Länsituuli 1, Tapiola, 02100 Espoo
Tilatyyppi Liiketila
Pinta-ala 241 m²
Kerros 1
Energialuokka C2018
Vapautuminen Sopimuksen mukaan
Rakennusvuosi 1985
Ilmanvaihto Jäähdytys
Lattian kantavuus Espoo kN/m²
Autopaikat Saatavilla
Kierrätys Kyllä

Tilaa vuokraa

Vuokravälittäjä

Heli Jalonen

Tutustu kiinteistöön

Jaa tai tulosta

Kiinteistön palveluita

  • Kuntosali

    Fressi 24h Kuntosali Tapiola on kuntosali laatua arvostavalle.

  • Neuvottelutilat

    Valoisa edustustila kiinteistössä tarjoaa mahtavat puitteet erilaisten tilaisuuksien järjestämiselle.
    Varaukset: Saunat.fi

  • Pysäköinti

    Kiinteistössä on mahdollisuus vuokrata hallipaikkoja Tapiolan Paikotukselta.

  • Pyöräparkki

  • Sauna

    Saunatilat koostuvat viihtyisästä loungesta, keittiöstä, tilavasta saunasta sekä suuresta terassista, josta on upeat näköalat Tapiolan yli.
    Varaukset: Saunat.fi

Julkiset liikenneyhteydet

  • Bussipysäkki: 50 m
  • Metroasema: 50 m
  • Juna-asema: 6,5 km
  • Lentoasema: 26 km