Lintuvaarantie 2, Leppävaara, 02650 Espoo

Siisti monitilatoimisto Soinnun A-talossa, josta näkymät avautuvat kauppakeskus Sellon suuntaan sekä pohjoiseen puistoon päin.

Soveltuu hyvin esim. väistötilaksi; tilaan tehtävä vuokrasopimus voi olla voimassa toistaiseksi 3 kk:n irtisanomisajalla. Tilaan ei tehdä muutostöitä. Edullinen vuokra, kysy lisää!

Tilan perustiedot

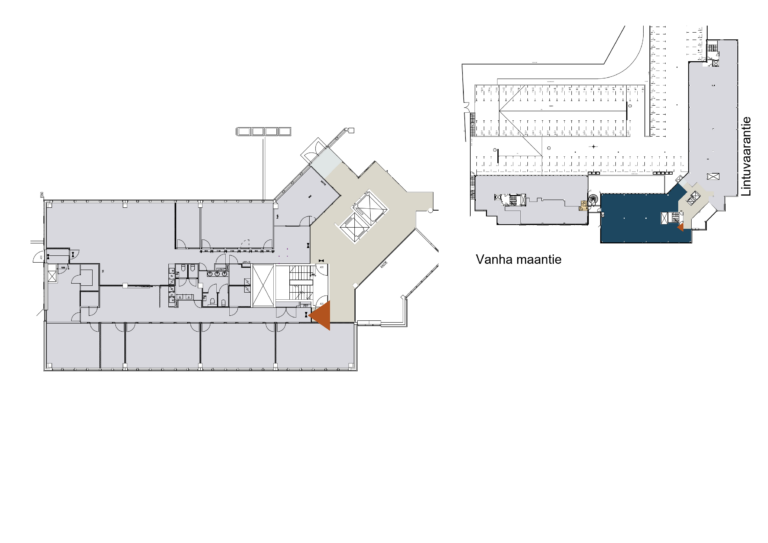
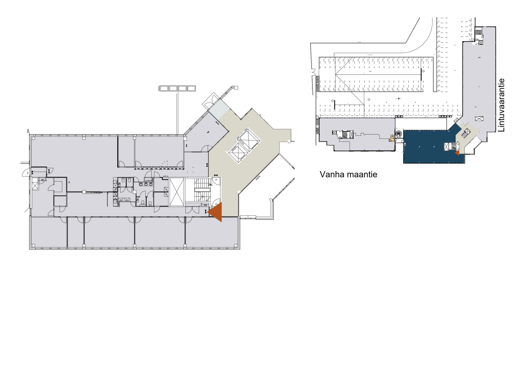
Käyntiosoite Lintuvaarantie 2, Leppävaara, 02650 Espoo
Tilatyyppi Toimisto
Pinta-ala 402 m²
Henkilömäärä 30-60 henkilöä
Kerros 2
Energialuokka C2018
Vapautuminen Sopimuksen mukaan
Tilan ominaisuudet monitilatoimisto
Rakennusvuosi 1991
Ilmanvaihto Koneellinen
Tietoliikenneyhteydet Valokuitu
Autopaikat Saatavilla

Tilaa vuokraa

Vuokravälittäjä

Heli Jalonen

Tutustu kiinteistöön

Jaa tai tulosta

Kiinteistön palveluita

  • Catering

    Lounasravintola Amar tarjoaa Soinnussa catering-palvelut omiin tai vuokrattaviin kokoustiloihin.

    Kysy lisää catering-palvelusta.

  • Hieronta

    Katso Suomen urheiluhierojien lisätiedot.

  • Kuntosali

    Soinnun kuntosalilla on kattavasti laitteita ylläpitämään hyvää yleiskuntoa. Salin yhteydessä on omat sosiaalitilat naisille ja miehille.

  • Lounasravintola

    Lounasravintola Amar tarjoaa Soinnussa maittavia lounaita arkisin.

    Tutustu lounaslistaan.

  • Neuvottelutilat

    Sointu tarjoaa asiakkailleen sopimuksen mukaan vuokrattavia neuvottelutiloja.

    Neuvottelutilojen varaukset Soinnun lounasravintolasta.

  • Pukuhuone

  • Sauna

    Soinnun saunaosastolla voi pitää yrityksen omia virkistystilaisuuksia kuin myös virallisempia asiakastilaisuuksia.

    Saunaosaston varaukset Soinnun lounasravintolasta.

  • Suihkutila

  • Sähköautojen latauspaikat

    Kiinteistön pihapysäköintialueella on kaksi yhteiskäyttöistä sähköautonlatauspaikkaa.

Julkiset liikenneyhteydet

  • Juna-asema: 500 m
  • Bussipysäkki: 200 m
  • Lentoasema: 19,3 km