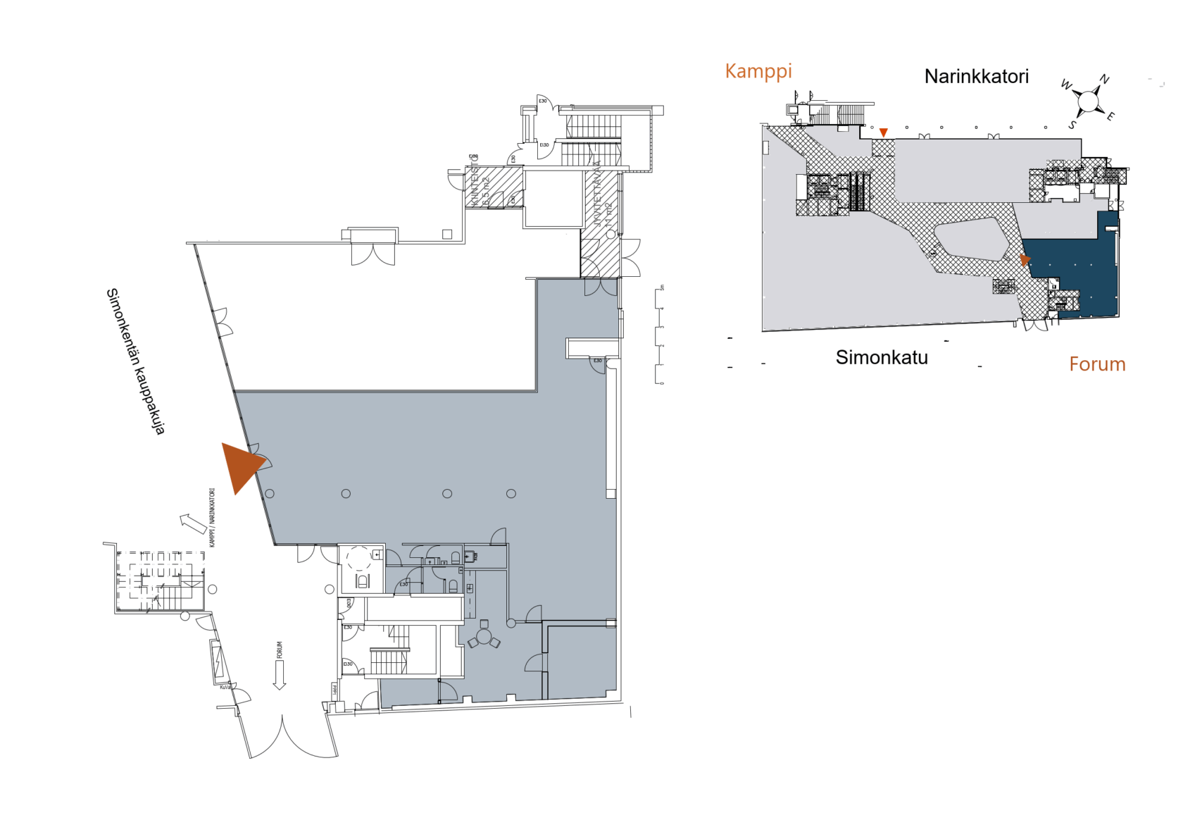
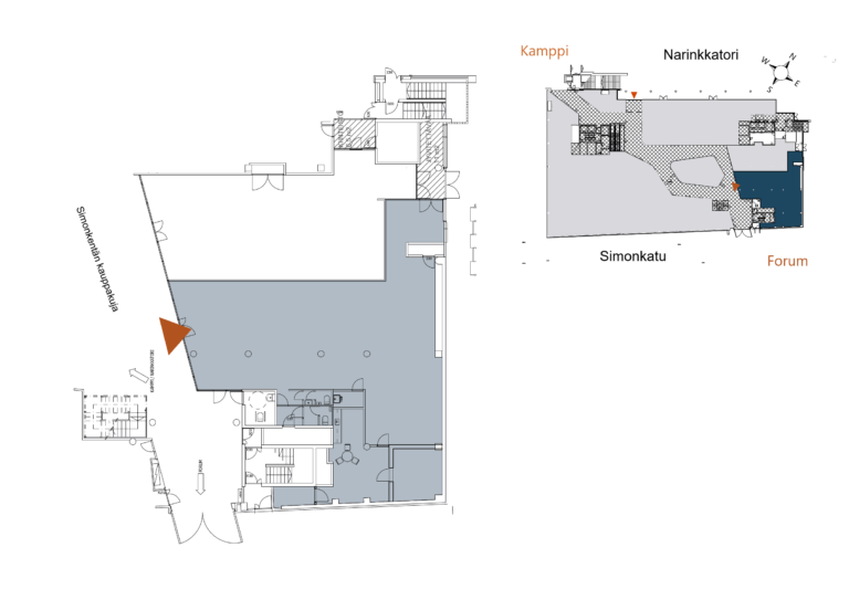
Simonkatu 9, Kamppi, 00100 Helsinki

Simonkentän kauppakujan vilkas ohikulkuvirta ja Narinkkatorin läheisyys tarjoavat erinomaiset mahdollisuudet erilaiselle liiketoiminnalle.

Kampin ja Forumin kauppakeskusten läheisyys lukuisine kauppoineen, ravintoloineen ja  palveluineen lisäävät kohteen vetovoimaa.

Tilassa voi toimia myös arvonlisäveroton toimija kuten lääkäriasema, tila ei kuitenkaan sovellu ravintolatoimintaan tai ruoanvalmistusta edellyttävään käyttöön.

 

Tilan perustiedot

Käyntiosoite Simonkatu 9, Kamppi, 00100 Helsinki
Tilatyyppi Liiketila
Pinta-ala 266 m²
Kerros 1
Energialuokka C2018
Vapautuminen Heti vapaa
Rakennusvuosi 2000
Ilmanvaihto Jäähdytys
Tietoliikenneyhteydet Valokuitu
Esteettömyys Kiinteistö on esteetön ja sopii liikuntarajoitteisille
Kierrätys kyllä

Tilaa vuokraa

Vuokravälittäjä

Heli Jalonen

Tutustu kiinteistöön

Jaa tai tulosta

Kiinteistön palveluita

  • Kuntosali

  • Lounasravintola

    Sekä Kampin, että Forumin kauppakeskuksissa on laaja tarjonta lounasravintoloita jokaiseen maksuun. Samasta rakennuksesta löytyy Ravintola Plaza.

    Katso Ravintola Plazan lounaslista

  • Neuvottelutilat

  • Pukuhuone

  • Pysäköinti

  • Pyöräparkki

  • Sauna

  • Suihkutila

Julkiset liikenneyhteydet

  • Metroasema: 300 m
  • Juna-asema: 500 m
  • Raitiovaunupysäkki: alle 100 m
  • Bussipysäkki: alle 100 m
  • Lentoasema: 19,9 km