Hoitajanrinne 1, Kontinkangas, 90220 Oulu

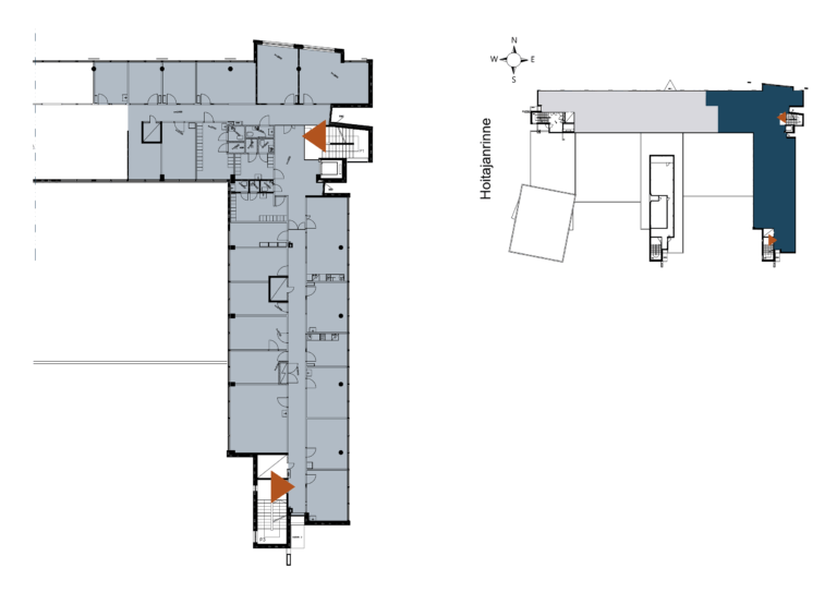
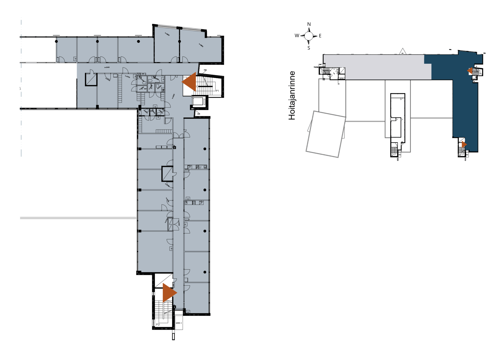
Tarjolla tehokas ja muunneltava toimistotila neljännessä kerroksessa, yhteensä 457 m². Pohjaratkaisu on on toimiva yksittäisiin tiimityöskentelyihin tai muokattavissa yrityksen tarpeiden mukaisesti.

Kiinteistössä on laadukkaat yhteiset palvelut, kuten auditorio, ravintola ja vuokrattava neuvottelutila. Sijainti tarjoaa hyvät kulkuyhteydet julkisilla ja omalla autolla, kuin pyöräillen.

Huom! Ilmoituksessa esitetyt kuvat ovat visualisointikuvia ja esimerkkejä mahdollisesta toteutuksesta. Ne eivät ole suoria kuvia kyseisestä tilasta.

 

Tilan perustiedot

Käyntiosoite Hoitajanrinne 1, Kontinkangas, 90220 Oulu
Tilatyyppi Toimisto
Pinta-ala 457 m²
Henkilömäärä 20-40 henkilöä
Kerros 4
Energialuokka E2013
Vapautuminen Sopimuksen mukaan
Rakennusvuosi 1993
Ilmanvaihto Koneellinen
Tietoliikenneyhteydet Valokuitu (jakamossa)
Autopaikat Autopaikkoja vuokrattavissa

Tilaa vuokraa

Vuokravälittäjä

Anne-Mari Ijäs

Tutustu kiinteistöön

Jaa tai tulosta

Kiinteistön palveluita

  • Auditorio

    Kiinteistössä on auditorio sekä neuvottelutila, joita kiinteistössä toimivat yritykset voivat vuokrata.

  • Lounasravintola

    Kiinteistössä palvelee lounasravintola Aalto Catering. Ravintolasta saa tilattua myös catering-palveluita kokouksiin ja tapahtumiin.

     

  • Pysäköinti

    Pysäköintipaikkoja on runsaasti  kiinteistön välittömässä yhteydessä. Paikkojen vuokrauksesta vastaa Aimo Park.

Julkiset liikenneyhteydet

  • Bussipysäkki: 350 m
  • Lentoasema: 15 km