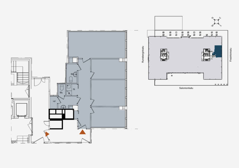
Salomonkatu 17, Kamppi, 00100 Helsinki

Vuokrataan näppärä pieni toimistotila jossa erillisiä huoneita.

Tilan perustiedot

Käyntiosoite Salomonkatu 17, Kamppi, 00100 Helsinki
Tilatyyppi Toimisto
Pinta-ala 80.9 m²
Henkilömäärä 1-6 henkilöä
Kerros 3
Energialuokka E2013, E2007, F2007
Vapautuminen Sopimuksen mukaan
Rakennusvuosi 1958
Ilmanvaihto Jäähdytys
Tietoliikenneyhteydet Valokuitu
Autopaikat Saatavilla
Kierrätys Kyllä
Ympäristösertifikaatti Autotalo: Breeam in use - Very Good

Tilaa vuokraa

Vuokravälittäjä

Heli Jalonen

Tutustu kiinteistöön

Jaa tai tulosta

Kiinteistön palveluita

  • Ruokakauppaa havainnollistava ikoni.

    Ruokakauppa

    Korttelin kivijalassa palvelee K-market.

  • Catering

    Kokous- ja muut tarjoilut ovat tilattavissa kiinteistössä toimivilta palveluntarjoajilta.

  • Autopesu

    Autopesu toimii ajanvarauksella ja sijaitsee korttelin pysäköintihallissa.

  • Lounasravintola

    Korttelin ensimmäisestä kerroksesta löytyy kattava ravintolamaailma. Tutustu kiinteistön ravintolatarjontaan tästä.

  • Neuvottelutilat

    Vuokrattavat neuvottelutilat löytyvät 13. kerroksen upeasta Sky Loungesta. Katso tarkemmat tiedot tiloista tästä.

  • Pysäköinti

    Yksityisautoille löytyy maanalaista pysäköintitilaa korttelin omasta pysäköintihallista, johon on hissiyhteys myös toimistokerroksista. Autopaikat vuokraa Europark. Tutustu Europarkin palveluun tästä.

  • Pyöräparkki

    Työmatkapyöräilijöille on siisti ja lämmin pyöräparkki.

  • Sauna

    Vuokrattavat saunatilat löytyvät korttelin 13. kerroksesta Sky Loungesta. Katso tarkemmat tiedot tiloista tästä.

  • Suihkutila

    Pukuhuoneiden yhteydestä löytyvät suihkutilat helpottavat työmatkapyöräilijän tai -juoksijan arkea.

Julkiset liikenneyhteydet

  • Bussipysäkki: alle 100 m
  • Metroasema: 100 m
  • Raitiovaunupysäkki: 100 m
  • Juna-asema: 800 m
  • Lentoasema: 19,4 km